ミニミニ桜川店 Top >:物件の詳細
物件詳細情報表示
表記されている物件の最新の空室状況については、お手数ですがお店の方迄確認をお願い致します。
ハイグレード賃貸!
[ No.271281284000001 ]
物件の詳細情報
 |
物件構造 |
鉄筋コンクリート造 |
物件種別 |
マンション |
階 層 |
10階 |
築年数 |
築21年 |
所在地 |
大阪市中央区東平2 |
設備 |
オートロック、モニタ付インターホン、インターネット対応、駐輪場、BS、CS、CATV、エレベータ、宅配ボックス、エアコン、フローリング、セパレート、追い炊き機能、洗濯パン、システムキッチン、給湯器、ウォッシュレット、シャンプードレッサー |
|
お部屋の情報
 |
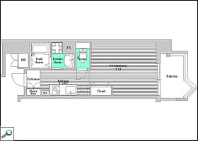
間取り |
1K |
占有面積 |
24m2 |
家 賃 |
66,000円 |
解約引 |
- |
管理費 |
8,000円 |
敷 金 |
150,000円 |
礼 金 |
200,000円 |
保証金 |
- |
|