ミニミニ桜川店 Top >:物件の詳細
物件詳細情報表示
表記されている物件の最新の空室状況については、お手数ですがお店の方迄確認をお願い致します。
広くて安いです
[ No.271280792000000 ]
物件の詳細情報
 |
| 物件構造 |
鉄骨鉄筋コンクリート造 |
| 物件種別 |
分譲貸マンション |
| 階 層 |
12階 |
築年数 |
築24年 |
| 所在地 |
大阪市中央区鎗屋町2 |
| 設備 |
オートロック、インターネット対応、駐輪場、エレベータ、エアコン、フローリング、セパレート、洗濯パン、冷蔵庫、システムキッチン、給湯器、ウォッシュレット、洗面台、シャンプードレッサー |
|
お部屋の情報
 |
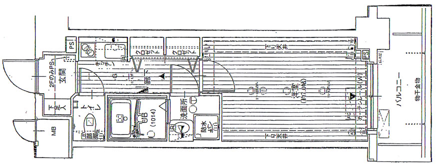
| 間取り |
1K |
占有面積 |
24m2 |
| 家 賃 |
63,000円 |
解約引 |
- |
| 管理費 |
7,000円 |
敷 金 |
- |
| 礼 金 |
150,000円 |
保証金 |
- |
|