ミニミニ桜川店 Top >:物件の詳細
物件詳細情報表示
表記されている物件の最新の空室状況については、お手数ですがお店の方迄確認をお願い致します。
茶屋町まで徒歩圏内、新築ハイグレード分譲賃貸マンションです。オートロック、エレベーター、モニター付きインターホン、宅配ボックス、光ファイバー、エアコン、2口ガスコンロ、独立洗面台、室内洗濯パンetc
[ No.271272018000003 ]
物件の詳細情報
 |
| 物件構造 |
鉄筋コンクリート造 |
| 物件種別 |
分譲貸マンション |
| 階 層 |
12階 |
築年数 |
築20年 |
| 所在地 |
大阪市北区浮田2 |
| 設備 |
オートロック、モニタ付インターホン、インターネット対応、駐輪場、エレベータ、宅配ボックス、エアコン、フローリング、セパレート、洗濯パン、ガスコンロ、給湯器、洗面台 |
|
お部屋の情報
 |
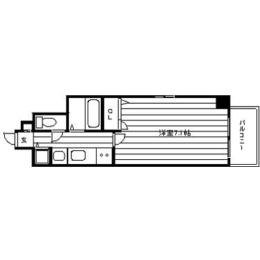
| 間取り |
1K |
占有面積 |
22m2 |
| 家 賃 |
61,000円 |
解約引 |
250,000円 |
| 管理費 |
8,000円 |
敷 金 |
- |
| 礼 金 |
- |
保証金 |
300,000円 |
|