ミニミニ桜川店 Top >:物件の詳細
物件詳細情報表示
表記されている物件の最新の空室状況については、お手数ですがお店の方迄確認をお願い致します。
新幹線で直結、大阪の玄関口新大阪、新築分譲マンション、ペットOKです。
ネコも飼育可能です。IH2口コンロ
[ No.271140135000003 ]
物件の詳細情報
 |
| 物件構造 |
鉄筋コンクリート造 |
| 物件種別 |
分譲貸マンション |
| 階 層 |
7階 |
築年数 |
築21年 |
| 所在地 |
大阪市東淀川区西淡路2 |
| 設備 |
オートロック、モニタ付インターホン、インターネット対応、ペットOK、駐輪場、BS、CS、CATV、エレベータ、宅配ボックス、エアコン、フローリング、セパレート、洗濯パン、システムキッチン、ウォッシュレット、洗面台、シャンプードレッサー |
|
お部屋の情報
 |
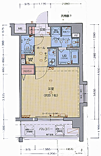
| 間取り |
1K |
占有面積 |
27m2 |
| 家 賃 |
70,500円 |
解約引 |
- |
| 管理費 |
7,000円 |
敷 金 |
60,000円 |
| 礼 金 |
150,000円 |
保証金 |
- |
|