ミニミニ桜川店 Top >:物件の詳細
物件詳細情報表示
表記されている物件の最新の空室状況については、お手数ですがお店の方迄確認をお願い致します。
築古いですが、内装綺麗ですよ。日当たりも良いですよ。スーパー・コンビニも近くにあります。
[ No.271111071000001 ]
物件の詳細情報
 |
| 物件構造 |
鉄筋コンクリート造 |
| 物件種別 |
マンション |
| 階 層 |
6階 |
築年数 |
築56年 |
| 所在地 |
大阪市浪速区元町3 |
| 設備 |
インターネット対応、駐車場、駐輪場、エレベータ、エアコン、フローリング、セパレート、ガスコンロ、給湯器 |
|
お部屋の情報
 |
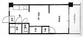
| 間取り |
1Room |
占有面積 |
27m2 |
| 家 賃 |
50,000円 |
解約引 |
- |
| 管理費 |
5,000円 |
敷 金 |
- |
| 礼 金 |
100,000円 |
保証金 |
- |
|