ミニミニ桜川店 Top >:物件の詳細
物件詳細情報表示
表記されている物件の最新の空室状況については、お手数ですがお店の方迄確認をお願い致します。
なんばパークス徒歩2分 交通至便!
[ No.271110929000005 ]
物件の詳細情報
 |
物件構造 |
鉄骨造 |
物件種別 |
マンション |
階 層 |
11階 |
築年数 |
築40年 |
所在地 |
大阪市浪速区難波中1 |
設備 |
オートロック、エレベータ、エアコン、洗濯パン、冷蔵庫、給湯器 |
|
お部屋の情報
 |
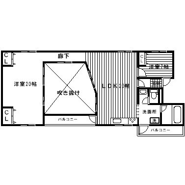
間取り |
1K |
占有面積 |
22m2 |
家 賃 |
55,000円 |
解約引 |
- |
管理費 |
5,000円 |
敷 金 |
- |
礼 金 |
- |
保証金 |
- |
|