ミニミニ桜川店 Top >:物件の詳細
物件詳細情報表示
表記されている物件の最新の空室状況については、お手数ですがお店の方迄確認をお願い致します。
24時間スーパー・井岡ボクシングジム近く♪
[ No.271110021000003 ]
物件の詳細情報
 |
| 物件構造 |
鉄筋コンクリート造 |
| 物件種別 |
マンション |
| 階 層 |
10階 |
築年数 |
築48年 |
| 所在地 |
大阪市浪速区稲荷1 |
| 設備 |
インターネット対応、エレベータ、エアコン、フローリング、セパレート、洗濯パン、ガスコンロ、給湯器、ウォッシュレット |
|
お部屋の情報
 |
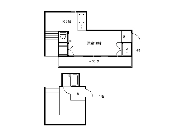
| 間取り |
1K |
占有面積 |
45m2 |
| 家 賃 |
65,000円 |
解約引 |
- |
| 管理費 |
5,000円 |
敷 金 |
- |
| 礼 金 |
200,000円 |
保証金 |
- |
|