ミニミニ桜川店 Top >:物件の詳細
物件詳細情報表示
表記されている物件の最新の空室状況については、お手数ですがお店の方迄確認をお願い致します。
分譲マンション。
[ No.271061104000003 ]
物件の詳細情報
 |
| 物件構造 |
鉄骨鉄筋コンクリート造 |
| 物件種別 |
分譲貸マンション |
| 階 層 |
15階 |
築年数 |
築41年 |
| 所在地 |
大阪市西区立売堀6 |
| 設備 |
駐輪場、エレベータ、エアコン、セパレート、洗濯パン、システムキッチン、給湯器、洗面台 |
|
お部屋の情報
 |
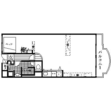
| 間取り |
1Room |
占有面積 |
61m2 |
| 家 賃 |
100,000円 |
解約引 |
500,000円 |
| 管理費 |
18,020円 |
敷 金 |
- |
| 礼 金 |
- |
保証金 |
7,000,000円 |
|